Views: 64 Author: Lionel Lee Publish Time: 2024-12-24 Origin: Site
Early in March 2021, we Deyuan Marine received an email from our regular client with the topic of “Invitation to Quote for the Slipway Winch project”, it’s about a potential project to build new slipway designed to accommodate a 7000 tons deadweight vessel and will be dock using airbag system.
Initial communication and Solution
After knowing the relevant parameters like design working conditions, angle of the slipway, friction coefficient by using airbags, we Deyuan Marine carried out preliminary calculation and design:

Figure 1 Slipway Condition
According to CB/T 3837-2011, the F need consider Brake inertia force: m.V/T as well.
F=Q.g.sinα+.μQ.g.cosα+m.V/T=366.35g + 87.38g+m.V/T=4666.5KN+m.V/T;
1/2*m*V*V=PT>>>>m=88.9PT;
so F=453.73*g+13.335P, assume P is about 80KW, F=5513KN=562.6T;
Factor of safety here range from 1.2~1.5 as per the standards of CB/T 38.7-2011
ΣF=843.9T when 1.5, B=843.9/15=56.3T
MBL of wire rope= 4 times of B(actual safety factor=1.5*4=6)=225.2T, diameter about 60~62mm
Capacity of drum: at least: 160m*15+50=2450m
However if use 60mm wire, the drum of winch will be very huge.
If MBL of wire rope=2 times of B(actual safety factor=1.5*2=3)=112.6T, diameter about 44mm
The 2nd Communication and Solution
Customer requested drum designed load 60T and overload 80T, so we update the solution as below:
Actual Total Load:366.35+87.38=453.33T
Pulley Block advantage: 20
Actual Drum Load:454.03/20=22.7T
Safe Total Load:Actual Total Load * factor of safety=453.33T*2=907.46T
Safe Drum Load:907.46T/20T=45.3T
Designed Drum Load:60T (>45.3T>22.7T)
Designed Drum Over Load:80T (<MBL of wire)
MBL of wire:910KN=92T
Actual factor of safety:92T/22.7=4.05
Based on it we submitted a quotation and drawing of a Friction Winch with pulley block.

Figure 2 Friction Winch
The 3rd~Nrd Communication and Solution
Since the client reserved sufficient time for project preparation (three years in advance), they discussed and updated with us every six months. We changed the solutions about Drum load, driven way,diameter of wire rope,supplying range etc., finally, we confirmed the all the details and closed the deal, include a Motor drive winch, 3700m wire rope, pulley block,fairleads and shackles---all assembly parts for the winch project.

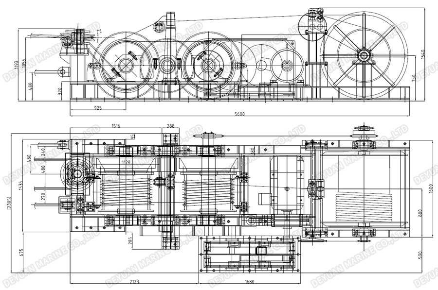
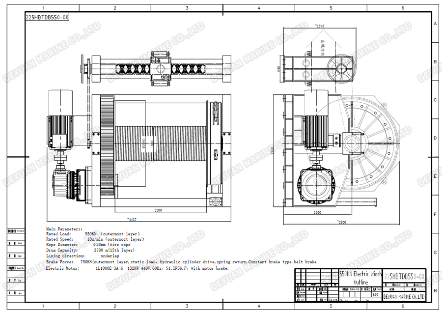
Figure 3 Motor Drive Winch

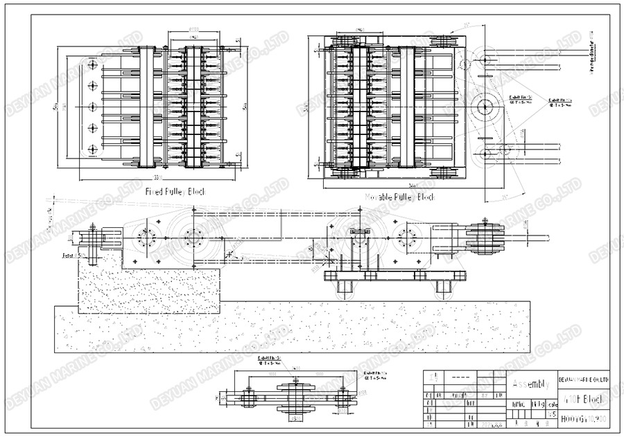
Figure 4 Pulley Block
Product photograph

Figure 5 Slipway Docking Winch

Figure 6 Wire Rope Spooling Device

Figure 7 Fixed Pulley Block

Figure 8 Movable Pulley Block
Conclusion
We Deyuan Marine have the ability to design slipway docking of vessels solutions for shipyards and provide a full set of related equipment such as Friction Winch, Towing Winch, Pulley Block, Airbags, Wire rope, Connecting Shackle etc., welcome to contact us for Professional guidance or assistance.