| Availability: | |
|---|---|
Product Description
Fixed Type D Mushroom Ventilators for ship CB/T 295-2000
Mushroom Ventilator is installed on deck for natural ventilation or mechanical ventilation devices .
CB/T295 Mushroom Ventilation is generally used for kitchen and accommodation of ventilator regulating screw, simply turn adjusting handwheel indoors can reach the purpose of adjusting the opening size.
CB/T 4444-2017 is a new edition of CB/T 295-2000, type D of CB/T 295 is equal to type E of CB/T 4444.
Process requirements
1. Surface: should be flat and smooth, without sharp edges, distortion, or skew.
2. Size error: ±3mm, and the deviation of the verticality is 2/h1000 (h is the height of the ventilator cylinder)
3. The welding surface: free of cracks, slag inclusions, burn-through, and unfused defects.
4. The opening of the weather-tight cover of the fungus-shaped ventilator for ships should be flexible, and the movable part should be coated with neutral lubricating grease.
5. Derusting: the internal and external surfaces of the steel parts of the fungus-shaped ventilating cap should reach the Sa2 level or St2 level specified in GB/T8923, and then two antirust primers.

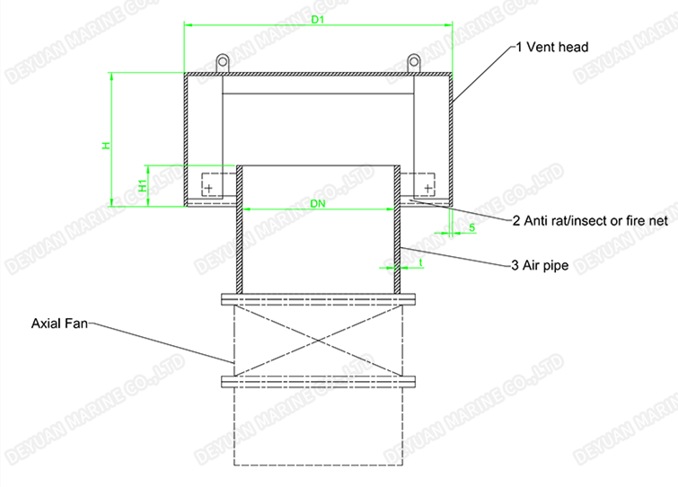
Structure descriptions:
1. Vent head
2. Rat-proof, insect-proof net or fire net
3. Air pipe
Obviously, type D CB/T 295's fixed type installed above an axial fan.
Type D CB/T 295-2000 Models:
| Nominal Diameter DN | D1 | D2 | H | H1 | H2 | d | t | Weight kg |
| 250 | 440 | 200 | 220 | 90 | 210 | Tr24x5-LH | 6 | 62 |
| 300 | 530 | 265 | 77 | |||||
| 350 | 620 | 310 | Tr30x6-LH | 96 | ||||
| 400 | 710 | 290 | 345 | 105 | 230 | 118 | ||
| 450 | 800 | 375 | 8 | 147 | ||||
| 500 | 890 | 320 | 405 | Tr40x7-LH | 179 | |||
| 550 | 980 | 435 | 207 | |||||
| 600 | 1050 | 470 | 120 | 270 | 223 | |||
| 650 | 1160 | 500 | 249 | |||||
| 700 | 1240 | 520 | 274 | |||||
| 750 | 1320 | 540 | 309 | |||||
| 800 | 1410 | 560 | 140 | 320 | 359 | |||
| 850 | 1500 | 580 | 408 | |||||
| 900 | 1580 | 360 | 600 | Tr46x8-LH | 434 | |||
| 950 | 1670 | 620 | 455 | |||||
| 1000 | 1760 | 640 | 530 | |||||
| 1100 | 1930 | 680 | 601 | |||||
| 1200 | 2100 | 720 | 689 | |||||
| 1300 | 2270 | 760 | 761 | |||||
| 1400 | 2440 | 400 | 800 | 350 | 939 | |||
| Note:the weight is of the ventilator only, not including air pipe | ||||||||